ADDRESS
62 E Park Place
Morristown, NJ 07960
Due to the health concerns created by Coronavirus we are offering personal 1-1 online video walkthough tours where possible.


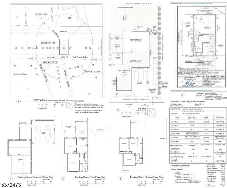
Property Is currently a 3 bedroom and two bath single-family house in a great condition,approved for additional two 3-bedroom apartments to make it a 3-family doweling. PROJECT IS APPROVED FOR 3 FAMILY; plans are available up on request.
| 3 months ago | Status changed to Active | |
| 3 months ago | Listing updated with changes from the MLS® | |
| 4 months ago | Listing first seen on site |
Did you know? You can invite friends and family to your search. They can join your search, rate and discuss listings with you.